Active

15003 Toothrock Rd

Poway, CA 92064
Mark as Favorite
SqFt281,397.60

Sqft(Lot)

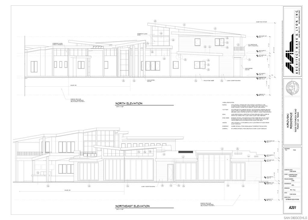
Ready to build! After four years in the making with permits and approvals, this exceptional homesite is now ready for your dream estate. Behind the private gates of Tooth Rock Trail Estates, this 6.46 acre lot offers the rare combination of complete privacy, open space, and breathtaking 180 degree views. Imagine waking to peaceful surroundings, gentle breezes, and unforgettable sunrises and sunsets that paint the hills in soft pink hues. The expansive graded pad is fully finished and approved by the City of Poway, saving you years of time and expense. Even better, the property comes with approved architectural plans by renowned architect Mark D. Lyon for an approximately 6,800 square foot luxury residence. The home design features four bedroom suites plus an office, a playroom or flex spac e, a separate study or recreation area, a main level primary suite, a four car garage, a stunning vanishing edge pool, and a spacious grassy area perfect for entertaining and everyday living. This is a rare opportunity to create a showpiece estate in one of Poway’s most serene and sought-after neighborhoods. Properties like this do not come along often and it must be seen in person to fully appreciate its beauty, privacy, and unmatched potential. Act now and make this extraordinary setting your own.

Read More Expand

Detail Ic Property Details

Property Type : Land

Price : $949,000

AD Id : 68697312

MLS Id : 250043952SD

Lot Size : 281,397.60 Sqft(Lot)

County : San Diego

Subdivision: Fallbrook

  • Map Map

Map

Map What's Nearby

Map Nearby Areas

Feature Features

  • Bathroom Information

    Total Baths: 0

  • Fencing

    None

  • Lot Details

    Lot Dimensions Source: Vendor Enhanced Lot Size Acres: 6.46
  • Lot Size Source: Public Records Lot Size Square Feet: 281397.6

  • Listing Price Information

    Original List Price: 949,000 Listing Contract Date: 2025-11-12
  • Lease Information

    Listing Agreement: Exclusive Right To Sell

  • Tax Information

    Parcel Number: 3211004500

  • Garage and Parking

    Homeowners Association

    Association: Yes Association Fee: 1800 AssociationFee Frequency: Annually Calculated Total Monthly Association Fees: 1800

  • Other Property Info

    Source Listing Status: Active Source Neighborhood: 92064 - Poway Directions: Espola to High Valley to Toothrock Rd CrossStreet: High Valley Rd Source Property Type: Land Area: 92064 - Poway
Sell a home like this and save $56,441 Find out How

How much is this property worth?

Curious about this home's true market value? Use our free Home Evaluation Tool to instantly get a personalized Comparative Market Analysis (CMA) report. Make smarter, data-driven decisions before you buy.

Images
Loading, please wait...

Nearby Home Value

Address Estimate Bed Bath Sq. Ft Lot Size
Highway 67, Poway, CA, 92064 $6,500,000 -- -- -- 18,925,513.20 Sqft(Lot)
18035 Sunset Point Rd, Poway, CA, 92064 $875,000 -- -- -- 241,758 Sqft(Lot)
15250 Skyridge Rd, Poway, CA, 92064 $795,000 -- -- -- 182,000 Sqft(Lot)
Indian Springs Road, Poway, CA, 92064 $299,999 -- -- -- 131,986.80 Sqft(Lot)
North Of Poway Road Lot.., Poway, CA, 92064 $145,000 -- -- -- 87,991 Sqft(Lot)
North Of Poway Road Lot.., Poway, CA, 92064 $275,000 -- -- -- 131,986 Sqft(Lot)
North Of Poway Road Lot.., Poway, CA, 92064 $195,000 -- -- -- 43,995 Sqft(Lot)
16321 Espola Road, Poway, CA, 92064 $1,999,999 -- -- -- 352,836 Sqft(Lot)
45 Carlson Court, Poway, CA, 92064 $139,000 -- -- -- 22,215.60 Sqft(Lot)
44 Carlson Court, Poway, CA, 92064 $139,000 -- -- -- 22,215.60 Sqft(Lot)

Copyright © 2026 by the Multiple Listing Service of the California Regional MLS®. This information is believed to be accurate but is not guaranteed. Subject to verification by all parties. This data is copyrighted and may not be transmitted, retransmitted, copied, framed, repurposed, or altered in any way for any other site, individual and/or purpose without the express written permission of the Multiple Listing Service of the California Regional MLS®. Information Deemed Reliable But Not Guaranteed. Any use of search facilities of data on this site, other than by a consumer looking to purchase real estate, is prohibited.

ByOwner last updated this listing 04/06/2026 @ 23:33

MLS: 250043952SD LISTED BY: Sonja Huter, Berkshire Hathaway HomeServices California Properties 858-756-3795 SOURCE: CRMLS

Selling? Save $56,441 when you sell a home like this

Learn More about this Property