Active

118 Southwind Drive

McCormick, SC 29835
Mark as Favorite
Bed 3

Bed

Bath 2

Bath

Acres0.32

Acre(Lot)

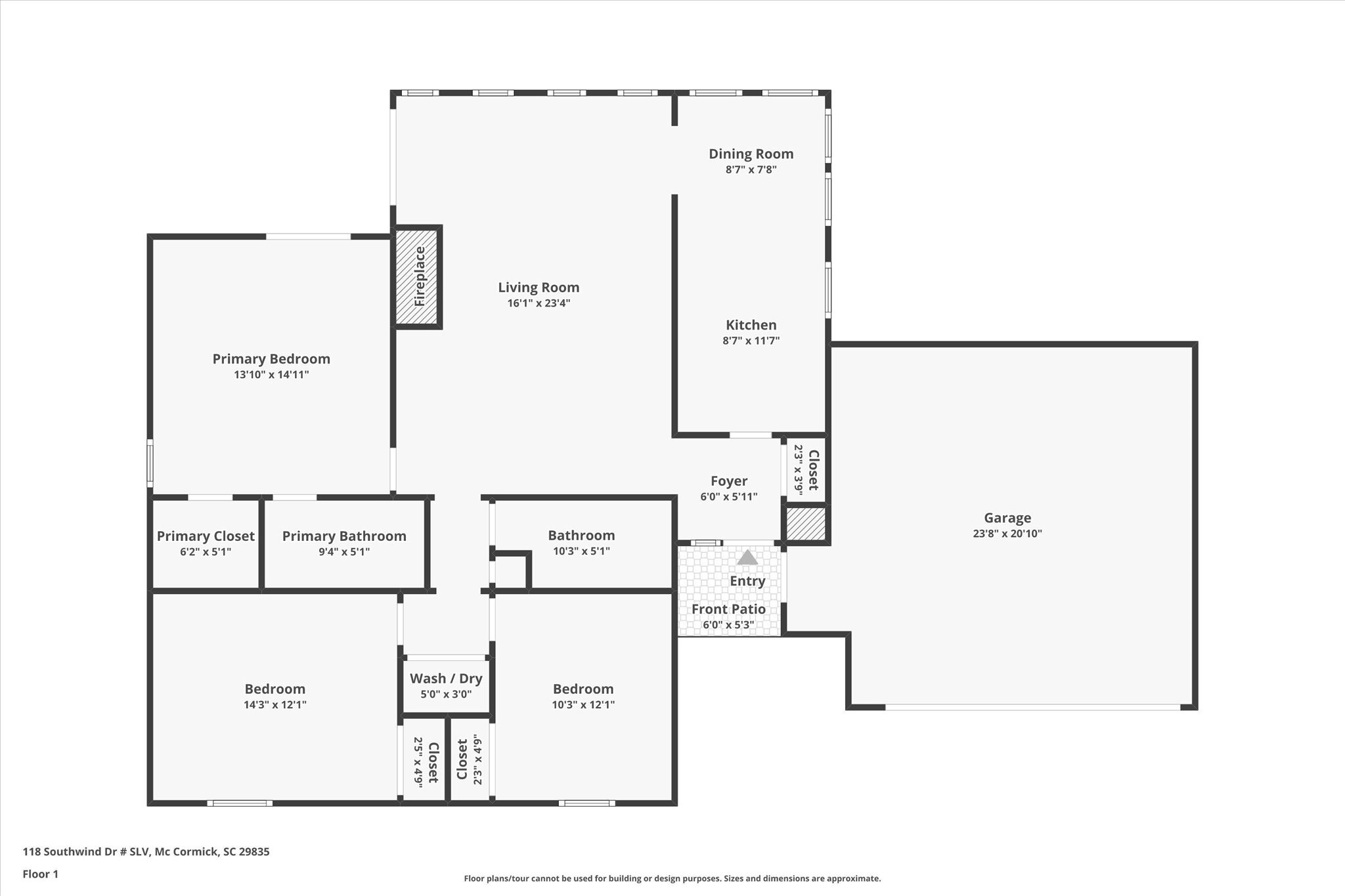
Corner Lot at 118 Southwind Drive | Savannah Lakes Village | McCormick, SC 3 Bedrooms | 2 Bathrooms | Bright, Move-In Ready Home in the Southwind Neighborhood Welcome to 118 Southwind Drive, a warm and inviting 3-bedroom, 2-bath home perfectly situated in the highly desired Southwind neighborhood of Savannah Lakes Village. This charming residence offers beautiful natural light, an efficient galley-style kitchen, with Quartz countertops, Beautiful Hardwood floors, wood burning fireplace with comfortable indoor-outdoor living--all in a peaceful, friendly, golf-and-lake community on a corner lot. HOME has NEW HVAC unit 3/2026 This is the ideal home for full-time residents, retirees, or buyers looking for a low-maintenance second home near Lake Thurmond and the amenities of Savannah Lakes Village. Interior Features Bright, open living areas with abundant natural light hardwood floors Galley-style kitchen offering great workflow and efficient design with Quartz countertops Eat-in breakfast area with backyard views 3 spacious bedrooms including a comfortable primary suite 2 full bathrooms with ample storage New HVAC installed 3/2026 Neutral finishes make it easy to personalize with hardwood floors, wood burning fireplace, quartz countertops Exterior & Neighborhood Highlights Located in the popular Southwind neighborhood on a corner lot. Quiet, low-traffic street Convenient to community trails, recreation center, and lake access Easy-to-maintain lot Perfect as a full-time home, downsizing opportunity, or lock-and-leave getaway 🌅 Savannah Lakes Village Lifestyle Living at 118 Southwind Drive means enjoying all the amenities of Savannah Lakes Village, including: Two championship golf courses (Tara & Monticello) Community docks and Lake Thurmond access Recreation Center with indoor & outdoor pools Fitness center, tennis, pickleball, bowling & more Miles of walking trails and nature Active social clubs and community events On-site dining and easy access to nearby marinas This community is known for its friendly atmosphere, natural beauty, and resort-style amenities. Why This Home Stands Out Move-in ready with great natural light Located in one of the most desirable neighborhoods in SLV Efficient layout with galley kitchen + eat-in dining Perfect price point for first-time SLV buyers or downsizers Incredible access to golf, lake activities, and amenities

Read More Expand

Detail Ic Property Details

Property Type : Residential

Price : $299,900

AD Id : 74664050

MLS Id : 550106

Beds : 3

Lot Size : 0.32 Acre

Year Built : 1990

Garage : 2

County : McCormick

Subdivision: Savannah Lakes Village

  • Map Map

Map

Map What's Nearby

Map Nearby Areas

Feature Features

  • Bedroom Information

    Total beds: 3

    Bathroom Information

    Total Baths: 2 Full Baths: 2

    Room Information

    Rooms Total: 8 Basement: Crawl Space
  • Flooring Information

    Hardwood
  • Roofing Information

    Composition
  • Interior Features

    Eat-in Kitchen, Entrance Foyer, Pantry, Walk-In Closet(s) Roof: Composition Appliances: Dishwasher, Disposal, Gas Range, Gas Water Heater, Microwave, Refrigerator, Vented Exhaust Fan Laundry Features: Electric Dryer Hookup, Washer Hookup Window Features: Insulated Windows
  • Heating & Cooling

    Has Heating: Yes Heating: Electric, Forced Air, Heat Pump, Other Has Cooling: Yes Cooling: Central Air, Heat Pump

  • Building Information

    Year Built: 1990 Building Area Total: 1365 Construction Materials: HardiPlank Type Patio And Porch Features: Patio Private Pool: No Water front Features: Lake Privileges Association Fee Frequency: Annually

  • Lot Information

    Lot Dimensions: 0.316 Main Square Feet: 0.32 Acres Lot Size Acres: 0.32 Lot Size Square Feet: 13764.96 Lot Description: Landscaped, Wooded, Other, See Remarks

    Property Information

    Subdivision: Savannah Lakes Village Source Property Type: Residential MLS Area Minor: McCormick (3MC) Property SubType: Single Family Residence Levels: One Property Age: 36

  • Listing Price Information

    Listing Price: $299900 Original Price: $309000 Cash, Conventional, FHA, VA Loan

  • Tax Information

    Parcel Number: 0890204017 Tax Block: 4

  • Parking Information

    Attached, Concrete, Garage, Garage Door Opener, Storage

    Garage Information

    Has Garage: Yes Garage Space: 2
    Homeowners Association Information
    Has Association: Yes HOA: $171.00 Community Features: Clubhouse, Golf, Pool, Street Lights, Tennis Court(s)

  • School Information

    Elementary School: McCormick Elementary
    Junior High School: MCCORMICK MIDDLE
    Senior High School: McCormick
  • Utility Information

    Cable Available
  • Location Information

    Direction: hwy 378 TR Holiday road TR Southwind drive House on he left WaterSource: Public Security Features: Smoke Detector(s)
Sell a home like this and save $17,495 Find out How

How much is this property worth?

Curious about this home's true market value? Use our free Home Evaluation Tool to instantly get a personalized Comparative Market Analysis (CMA) report. Make smarter, data-driven decisions before you buy.

Images
Loading, please wait...

The data relating to real estate on this website comes in part from the Internet Data Exchange program of Hive MLS. All information is deemed reliable but not guaranteed and should be independently verified. All properties are subject to prior sale, change, or withdrawal. Neither listing broker(s) nor ByOwner shall be responsible for any typographical errors, misinformation, or misprints, and shall be held totally harmless from any damages arising from reliance upon these data. Copyright ©2026 Hive MLS LLC. All Rights Reserved.

ByOwner last updated this listing 04/06/2026 @ 16:40

MLS: 550106 LISTED BY: Kristin Ball, Greene Advantage Realty SOURCE: Hive MLS (North Carolina Regional)

Selling? Save $17,495 when you sell a home like this

Learn More about this Property