Active

433 Henry Chapel Road

Belmont, NC 28012
Mark as Favorite
Bed 4

Bed

Bath 4

Bath

SqFt3,020

Sqft

Acres1

Acre(Lot)

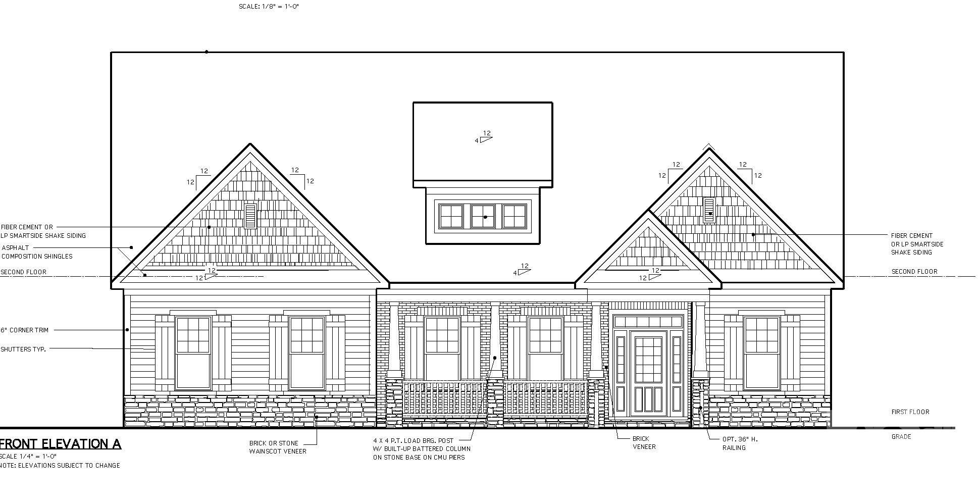
House anticipated to break ground summer 2026. Features are subject to change at time of construction. Main level to have: owner suite with two closets; bedroom / office space; laundry; kitchen - dining - living area Upstairs to have: two large bedrooms with oversized closets and ensuite bathrooms Oversized two car garage with extra bay for golf cart or riding mower Rocking chair front porch Covered porch at back of the house with additional patio space One acre lot Property abuts railroad tracks owned by Duke Energy and are no longer in use.

Detail Ic Property Details

Property Type : Residential

Price : $859,000

AD Id : 75603528

MLS Id : CAR4350647

Beds : 4

Lot Size : 1 Acre

Living Area Size : 3,020

Year Built : 2026

Garage : 2

County : Gaston

  • Map Map

Map

Map What's Nearby

Map Nearby Areas

Feature Features

  • Bedroom Information

    Total Bedroom: 4

    Bathroom Information

    Total Baths: 4 Full Baths: 4

    Interior Features

    Appliances: Dishwasher, Disposal, Electric Range, Microwave, Refrigerator with Ice Maker Laundry Features: Main Level
  • Flooring Information

    Construction Materials: Brick Partial, Hardboard Siding, Stone Veneer
  • Heating & Cooling

    Heating: Forced Air Cooling: Central Air WaterSource: Well

  • Building Information

    Year Built: 2026

  • Lot Information

    Lot Dimensions: 185x300x120x215 Lot Size Area: 1 acre

    Property Information

    Property Type: Residential Sub Type: Single Family Residence

  • Listing Price Information

    Original List Price:$859000

  • Tax Information

    Tax Assessed Value: 41920 Parcel Number: 302782

  • Parking Information

    Driveway, Attached Garage

    Garage Information

    Has Garage: Yes Garage Space: 2 Has Main Level Garage: Yes

  • School Information

    Elementary School: Unspecified Junior High School: Unspecified Senior High School: Unspecified
  • Utility Information

    Sewer: Septic Installed Water Source: Well
  • Location Information

    Subdivision: None City: Belmont Direction: From South Point Rd, turn onto Henry Chapel Rd, property is approximately one mile on left side.
Sell a home like this and save $51,041 Find out How

At $284.44 per sq.ft.,this listing is priced below average compared to other homes from Belmont.

The average homes price in Belmont is $370202.62 with avg. price / sq.ft of $2102.04.

The average homes price in Gaston County is $373818.81 with avg. price / sq.ft of $2100.74.

How much is this property worth?

Curious about this home's true market value? Use our free Home Evaluation Tool to instantly get a personalized Comparative Market Analysis (CMA) report. Make smarter, data-driven decisions before you buy.

Images
Loading, please wait...

Nearby Home Value

Address Estimate Bed Bath Sq. Ft Lot Size
516 Lands End Trail, Belmont, NC, 28012 $995,000 3 3 2,981 2,981 SqFt
164 Reese Wilson Road, Belmont, NC, 28012 $895,000 4 4 3,786 3,786 SqFt
310 Mitchell Street, Belmont, NC, 28012 $299,000 3 1 950 950 SqFt
305 Linestowe Drive, Belmont, NC, 28012 $299,900 2 2 1,142 1,142 SqFt
3251 Lake Pointe Drive, Belmont, NC, 28012 $2,599,000 6 6 6,752 6,752 SqFt
230 River Loop Road, Belmont, NC, 28012 $899,000 2 3 2,035 2,035 SqFt
LOT 42 Watercourse Way .., Belmont, NC, 28012 $1,294,724 4 3 4,016 4,016 SqFt
3131 Channel View Landing, Belmont, NC, 28012 $1,900,000 5 5 5,158 5,158 SqFt
113 Heather Glen Lane, Belmont, NC, 28012 $579,000 3 2 1,809 1,809 SqFt
127 Woodbend Drive, Belmont, NC, 28012 $399,000 3 2 1,282 1,282 SqFt

Disclaimer: The information being provided courtesy of CAROLINA (Canopy MLS) as distributed by MLS GRID and is for the consumer's personal, non-commercial use and may not be used for any purpose other than to identify prospective properties consumer may be interested in purchasing. Any information relating to real estate for sale referenced on this web site comes from the Internet Data Exchange (IDX) program of theCAROLINA (Canopy MLS). ByOwner.com is not a Multiple Listing Service (MLS), nor does it offer MLS access. ByOwner.com is a broker participant of CAROLINA (Canopy MLS). This web site may reference real estate listing(s) held by a brokerage firm other than the broker and/or agent who owns this web site.

Based on information submitted to the MLS GRID as of 04/06/2026 @ 06:20. All data is obtained from various sources and may not have been verified by the broker or MLS GRID. Supplied Open House Information is subject to change without notice. All information should be independently reviewed and verified for accuracy. Properties may or may not be listed by the office/agent presenting the information.
Properties displayed may be listed or sold by various participants in the MLS.

Consumer use of IDX Listings Disclaimer: Based on information submitted to the MLS GRID as of 04/06/2026 @ 06:20. All data is obtained from various sources and may not have been verified by broker or MLS GRID. Supplied Open House Information is subject to change without notice. All information should be independently reviewed and verified for accuracy. Properties may or may not be listed by the office/agent presenting the information. The data is deemed reliable but is not guaranteed by MLS GRID. The use of the MLS GRID Data may be subject to an end user license agreement prescribed by the Member Participant’s applicable MLS if any and as amended from time to time.


DMCA Notice: The Digital Millennium Copyright Act of 1998, 17 U.S.C. § 512 (the “DMCA”) provides recourse for copyright owners who believe that material appearing on the Internet infringes their rights under U.S. copyright law. If you believe in good faith that any content or material made available in connection with our website or services infringes your copyright, you (or your agent) may send us a notice requesting that the content or material be removed, or access to it blocked. Notices must be sent in writing by email to DMCAnotice@MLSGrid.com.
“The DMCA requires that your notice of alleged copyright infringement include the following information:
(1) description of the copyrighted work that is the subject of claimed infringement;
(2) description of the alleged infringing content and information sufficient to permit us to locate the content;
(3) contact information for you, including your address, telephone number and email address;
(4) a statement by you that you have a good faith belief that the content in the manner complained of is not authorized by the copyright owner, or its agent, or by the operation of any law;
(5) a statement by you, signed under penalty of perjury, that the information in the notification is accurate and that you have the authority to enforce the copyrights that are claimed to be infringed; and
(6) a physical or electronic signature of the copyright owner or a person authorized to act on the copyright owner’s behalf. Failure to include all of the above information may result in the delay of the processing of your complaint.

ByOwner last updated this listing 04/06/2026 @ 06:20

MLS: CAROLINA #4350647 LISTED BY: Cassandra Snyder, Marley Homes Construction 980-285-8081 SOURCE: CAROLINA (Canopy MLS)

Selling? Save $51,041 when you sell a home like this

Tour with a ByOwner Agent